Huajian Aluminium Industry Huajian Aluminium Industry
HJ63A سلسلة عازلة نافذة casement

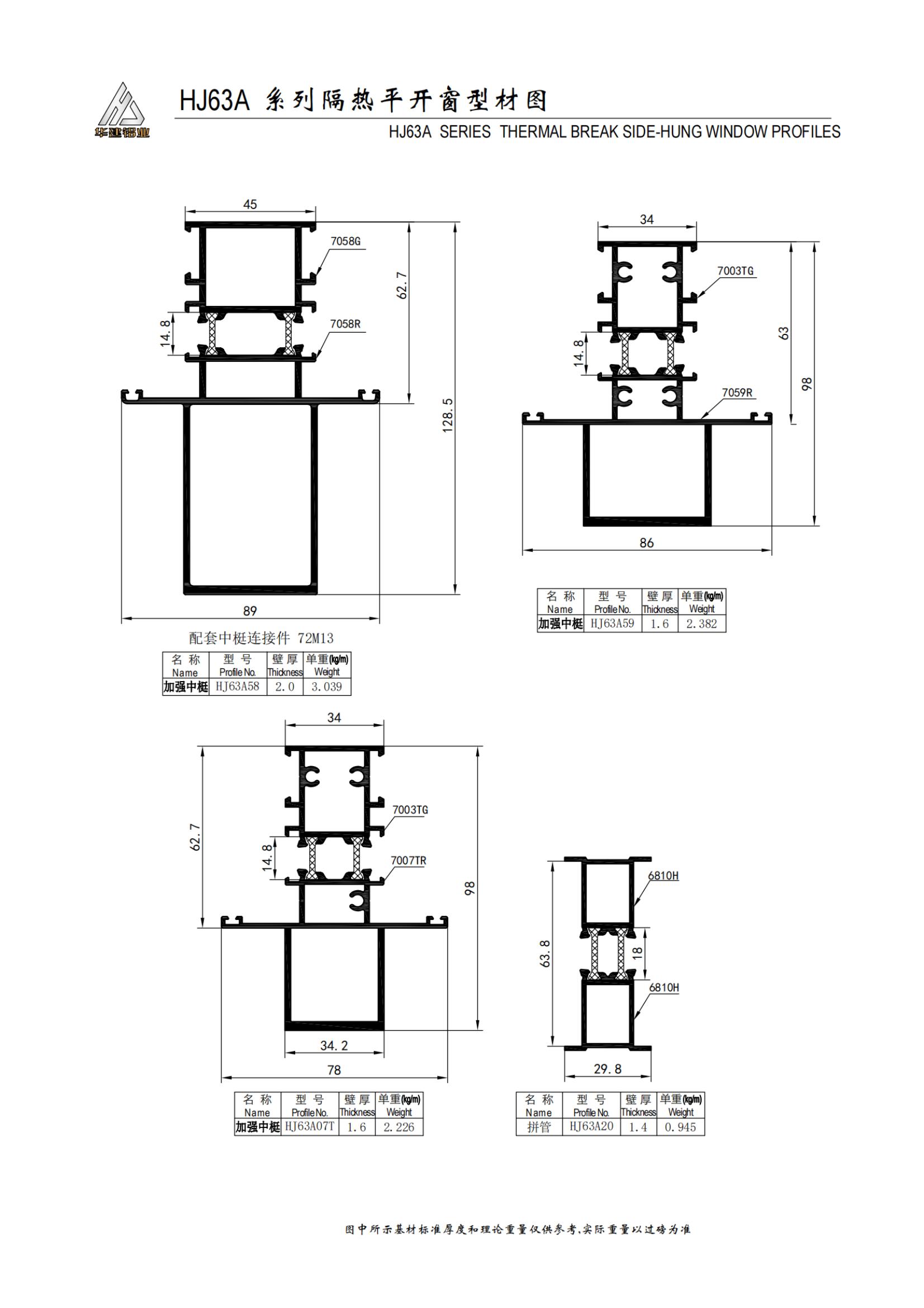
ملفات تعريف الباب والنافذة

HJ63A سلسلة عازلة نافذة casement

مزايا المنتج

· ملفات تعريف عالية القوة

· أداء العزل الحراري المتميز

· تحسين هيكل تجويف متعدد

· شريط العزل (PA66) ، العلامة التجارية المحلية العليا

· مقاومة الطقس القوية، قابلة للتكيف مع الظروف الجوية القصوى

تفاصيل المنتج

150+يوجد أكثر من 150 خط إنتاج بالبثق تتراوح طاقتها الإجمالية من 600 إلى 10000 طن
80طاقة إنتاجية سنوية تبلغ 800000 طن
1313 مختبرًا عالي المستوى
20+تتمتع المجموعة بخبرة تزيد عن 20 عامًا في تطوير عمليات بثق الألمنيوم

industrial advantage

· المواد الخام مصنوعة من قضبان الألومنيوم القياسية الوطنية

· مركز العفن الخاص بنا ، مع دقة العفن تصل إلى مستوى الميكرومتر

· 150 خطوط إنتاج البثق ، 10000 طن من الطاردات ، قدرة إنتاج كبيرة

· معالجات سطحية متنوعة وعمليات رائدة

· قدرات بحث وتطوير تقنية قوية، مع براءات الاختراع، والمشاركة في صياغة المعايير الوطنية

· تصميم مرن ومتنوع

· شهادة المعايير الدولية، الذهاب إلى الخارج إلى 50+ دولة ومنطقة

· الموافقة على حالات هندسية واسعة النطاق

· خدمة محطة واحدة

· هناك مركز اختبار وطني يمكنه تقديم تقارير الاختبار

· تقييم مؤهلات المؤسسة الوطنية والمؤهلات الفخرية

· شهادة البيئة الخضراء

· 25 سنة من الخبرة في تخصيص الملفات المعمارية

Corporate Advantages

 تمتلك القدرة على تطوير سبيكات الألومنيوم ، يمكننا مطابقة تركيبات سبيكة وفقًا لمتطلبات الأداء المختلفة للعملاء ، والتي لا تلبي احتياجاتهم لأداء المنتج وخفيفة الوزن فحسب ، بل تحقق أيضًا وفورات في التكاليف.

  بناء على متطلبات الدقة والأداء للمنتج ، يمكننا تصميم مسار عملية الإنتاج بشكل مستقل ، مما يحسن إلى حد كبير أداء الأجزاء الملحومة ويضمن دقة الأبعاد للتجميع.

  تمتلك القدرة على تطوير وتعديل القوالب البثقة والختم ، مما يقلل من تكاليف تطوير القوالب.

  وجود خطوط إنتاج البثق الآلية وخطوط إنتاج CNC يقلل من تكاليف العمالة.

  لدينا خطوط إنتاج متقدمة لمعالجة السطح مثل الأكسدة والكهرباء والطلاء ، والتي يمكن أن تلبي متطلبات العملاء المختلفة مع تقليل تكاليف الاستثمار في المعدات.

  وتمتلك المجموعة حاليا أكثر من 150 خط إنتاج للطرد يتراوح بين 600 إلى 10000 طن ، مع قدرة إنتاج سنوية تبلغ 800000 طن ، منها 40٪ أكثر من 2000 طن. بما في ذلك مواصفات مختلفة للطاردات التي تتراوح بين 500 طن إلى 10000 طن ، فإن المصنع السادس مكرس بشكل رئيسي لإنتاج الملفات الشخصية الصناعية والملفات الشخصية الخفيفة الوزن للسيارات ، مع قدرة إنتاج كافية لتلبية العملاء ' احتياجات البثق من أحجام ومواصفات مختلفة.

  أنشأنا مركز اختبار موحد على المستوى الوطني ، الذي تم اعتماده من قبل خدمة الاعتماد الوطنية الصينية لتقييم الامتثال (CNAS) ومعتمدة من قبل خدمة الاعتماد الوطنية الصينية لتقييم الامتثال (CMA) ؛ هناك 13 مختبرات عالية المستوى أنشئت بشكل مشترك، بما في ذلك مختبر التحليل الكيميائي، مختبر المعادن، مختبر الأداء الميكانيكي، مختبر الأداء الفيزيائي، مختبر الطيف، مختبر رش الملح، ومختبر الشيخوخة. يتم استيراد الأدوات والمعدات الرئيسية من دول مثل الولايات المتحدة وألمانيا وإسرائيل.

  تجربة استخراج الألومنيوم للمجموعة لديها تاريخ تطوير لأكثر من 20 سنة. بعد سنوات من التحقق والتراكم، تم تشكيل قاعدة بيانات غنية من البيانات والخبرة، بما في ذلك قواعد بيانات المنتجات، ومعايير التصميم، ومواصفات التحليل DFMEA、 PFMEA、 خطة التحكم، بيانات التحقق من صحة العملية، إلخ.