Huajian Aluminium Industry Huajian Aluminium Industry
جدار ستائري بإطار معزول من سلسلة M70

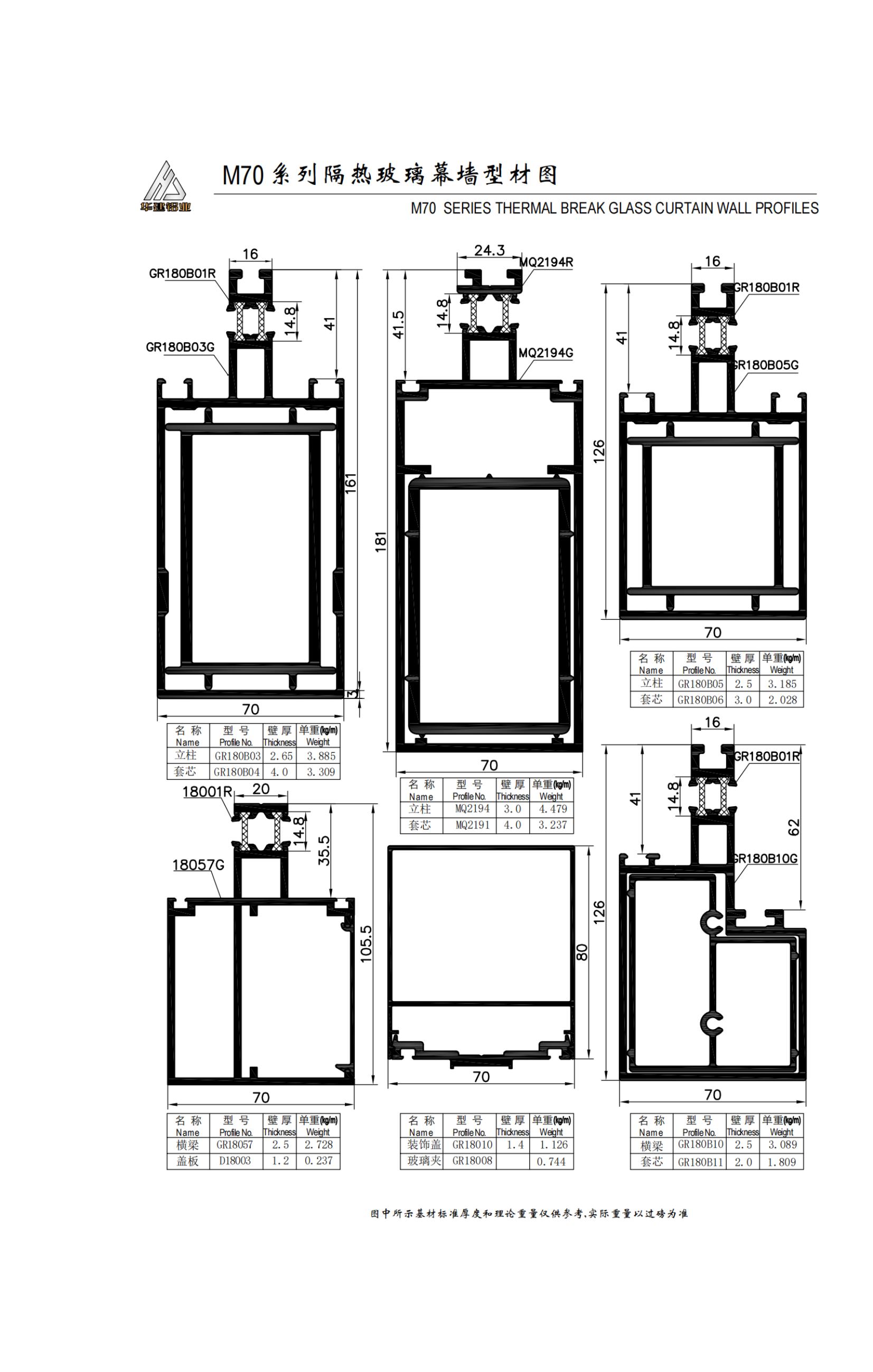
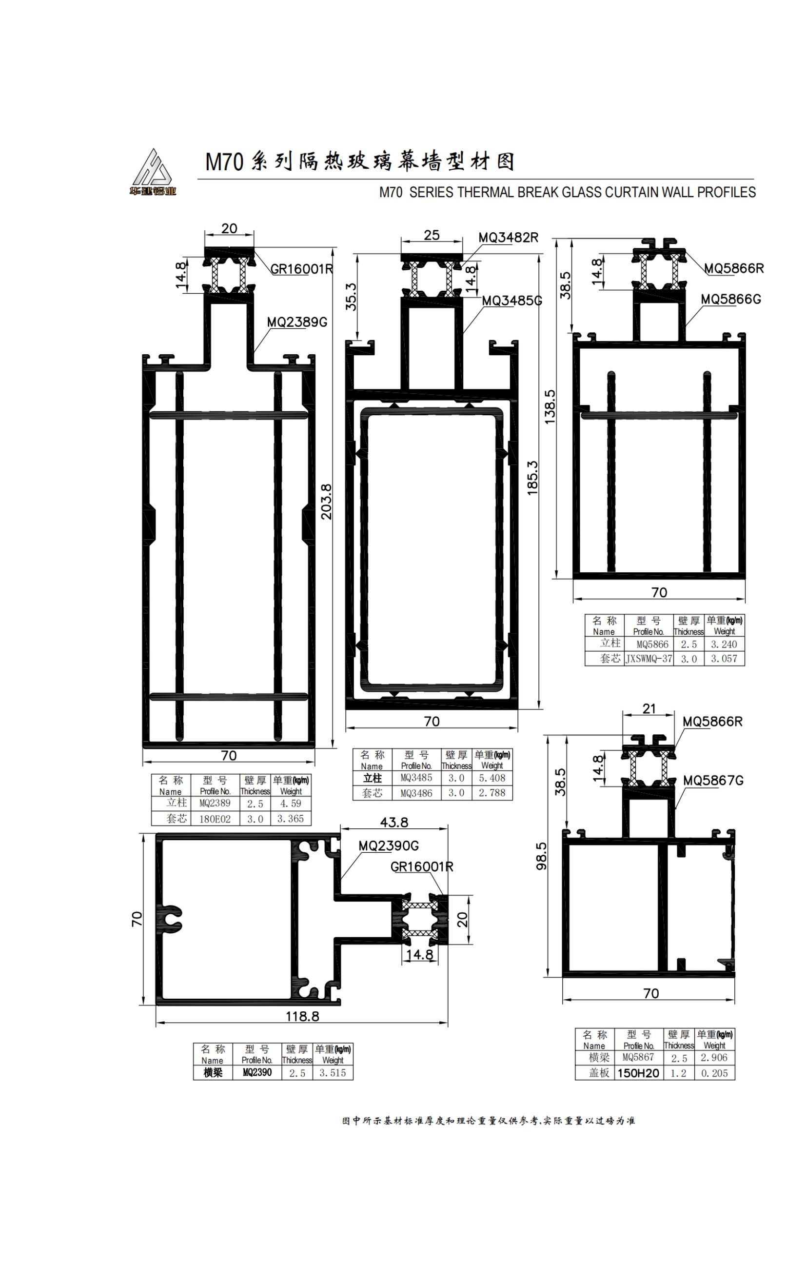
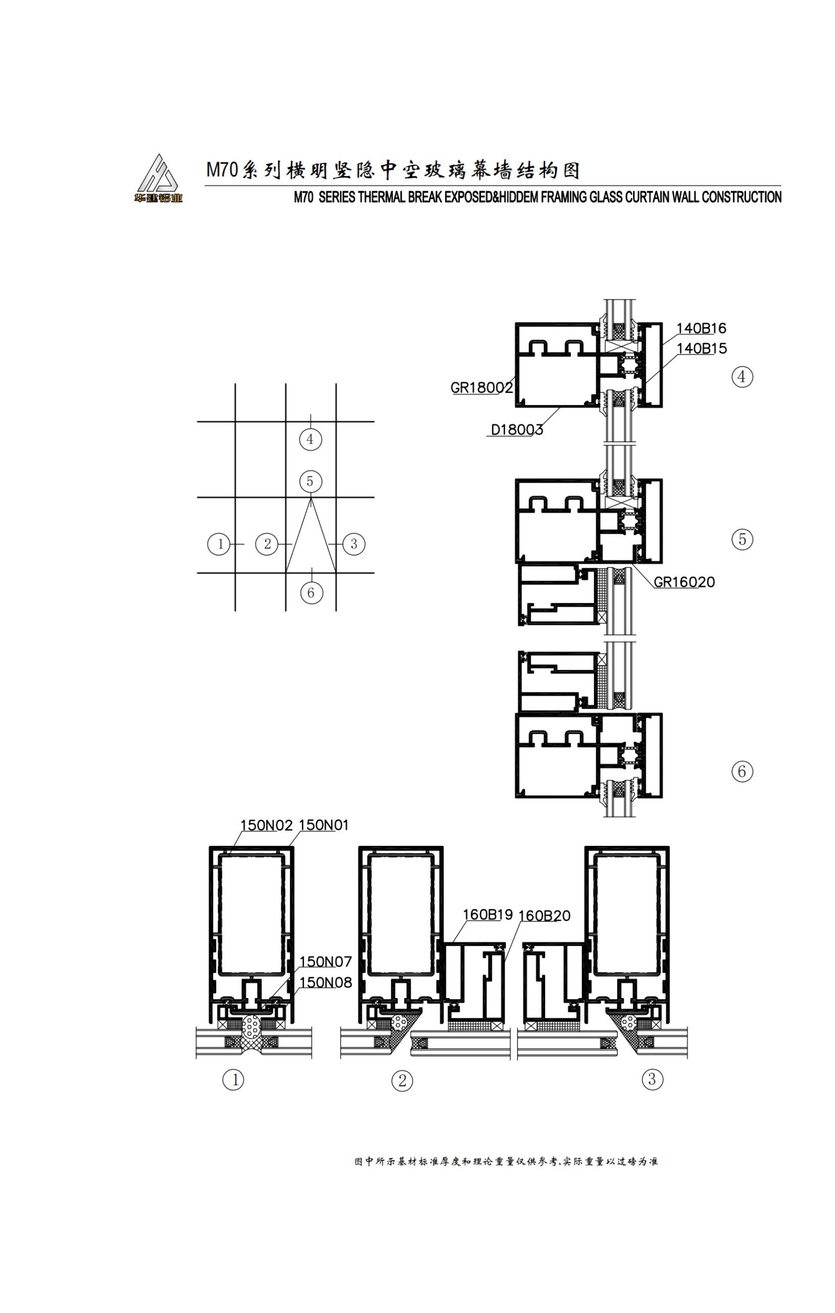
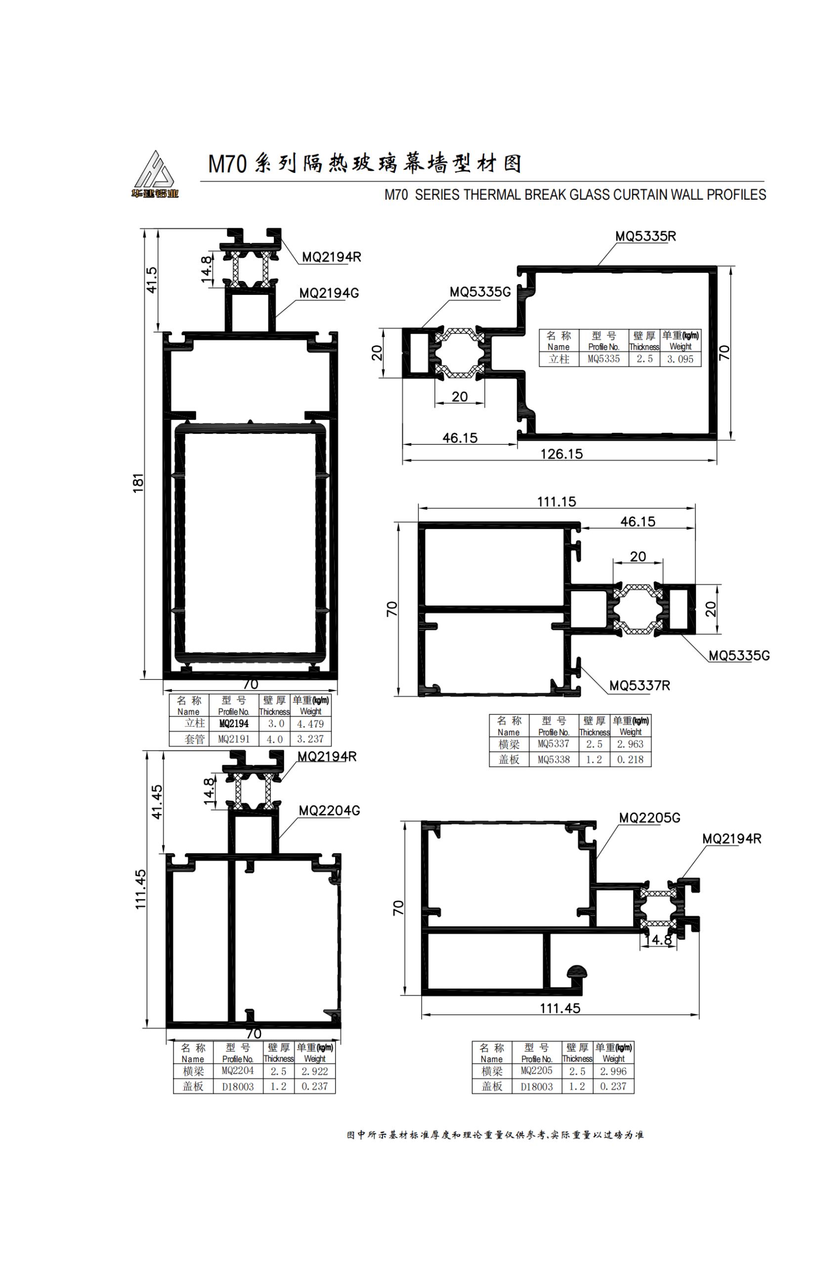
ستارة جدار الملفات الشخصية

جدار ستائري بإطار معزول من سلسلة M70

مزايا المنتج

  تتمتع شركة Huajian Curtain Wall System بتقنيتها الخاصة، وأبحاثها وتطويرها المستقلين، وحقوق الملكية الفكرية المستقلة بالكامل؛ وتتميز بخصائص تقنية وشاملة ومريحة وجذابة من الناحية الجمالية، مع توفيرها لإمدادات منهجية، واختبار وتقييم، ودعم برمجي، ومعدات أدوات، ودعم فني، ومعايير، ومنتجات تكنولوجيا المعلومات، وخدمة شراء متكاملة للغاية من محطة واحدة؛ ويلبي المنتج المتطلبات الفنية ذات الصلة للمعايير الوطنية، ويتمتع بخصائص كبيرة في توفير الطاقة وحماية البيئة.


  ·يدعم تخصيص الأقواس والأسطح والأشكال غير المنتظمة

  ·مستوى مقاومة ضغط الرياح، مناسب لاحتياجات المباني الشاهقة للغاية

  ·تتميز عمليات رش الفلوروكربون وغيرها من معالجات الأسطح بالمتانة وثبات اللون.

  ·التكيف مع الأمطار الحمضية والأشعة فوق البنفسجية والبيئات الخاصة

  ·تُحسّن المعالجة السطحية الرائعة ملمس المباني

تفاصيل المنتج

150+يوجد أكثر من 150 خط إنتاج بالبثق تتراوح طاقتها الإجمالية من 600 إلى 10000 طن
80طاقة إنتاجية سنوية تبلغ 800000 طن
1313 مختبرًا عالي المستوى
20+تتمتع المجموعة بخبرة تزيد عن 20 عامًا في تطوير عمليات بثق الألمنيوم

industrial advantage

  ·المواد الخام مصنوعة من قضبان ألومنيوم من الدرجة الأولى وفقًا للمعايير الوطنية

  ·مركز القوالب الخاص بنا، بدقة قوالب تصل إلى مستوى الميكرومتر

  ·150 خط إنتاج بالبثق، طاردات بسعة 10000 طن، طاقة إنتاجية كبيرة

  ·معالجات سطحية متنوعة وعمليات رائدة

  ·قدرات بحث وتطوير تقنية قوية، مع براءات اختراع، ومشاركة في صياغة المعايير الوطنية

  ·تصميم مرن ومتنوع

  ·شهادة المعايير الدولية، والتوسع إلى أكثر من 50 دولة ومنطقة

  ·تأييد قضايا هندسية واسعة النطاق

  ·خدمة شاملة

  ·يوجد مركز اختبار وطني يمكنه تقديم تقارير الاختبار

  ·تقييم مؤهلات المؤسسات الوطنية والمؤهلات الفخرية

  ·شهادة بيئية خضراء

  ·خبرة 25 عامًا في تخصيص الملفات المعمارية

Corporate Advantages

  بفضل قدرتنا على تطوير سبائك الألومنيوم، يمكننا مطابقة مجموعات السبائك وفقًا لمتطلبات الأداء المختلفة للعملاء، الأمر الذي لا يلبي احتياجاتهم من أداء المنتج وخفة الوزن فحسب، بل يحقق أيضًا توفير التكاليف.

  بناءً على متطلبات الدقة والأداء للمنتج، يمكننا تصميم مسار عملية الإنتاج بشكل مستقل، مما يحسن بشكل كبير أداء الأجزاء الملحومة ويضمن الدقة الأبعادية للتجميع.

  - القدرة على تطوير وتعديل قوالب البثق والختم، مما يقلل من تكاليف تطوير القوالب.

  إن وجود خطوط إنتاج البثق الآلية وخطوط الإنتاج CNC يقلل من تكاليف العمالة.

  لدينا خطوط إنتاج متقدمة لمعالجة الأسطح مثل الأكسدة والكهرباء والطلاء، والتي يمكن أن تلبي متطلبات العملاء المختلفة مع تقليل تكاليف الاستثمار في المعدات.

  تمتلك المجموعة حاليًا أكثر من 150 خط إنتاج بثق، تتراوح سعتها بين 600 و10000 طن، بطاقة إنتاجية سنوية تبلغ 800 ألف طن، منها 40% تزيد عن 2000 طن. يضم المصنع السادس آلات بثق بمواصفات متنوعة تتراوح بين 500 و10000 طن، وهو مخصص بشكل رئيسي لإنتاج المقاطع الصناعية والمقاطع خفيفة الوزن للسيارات، بطاقة إنتاجية كافية لتلبية احتياجات العملاء من البثق بمختلف الأحجام والمواصفات.

  لقد أنشأنا مركزًا وطنيًا للاختبارات المعيارية، معتمدًا من قِبل الهيئة الوطنية الصينية للاعتماد لتقييم المطابقة (CNAS) ومن قِبل الهيئة الوطنية الصينية للاعتماد لتقييم المطابقة (CMA). ويضم المركز 13 مختبرًا عالي الجودة، بما في ذلك مختبر التحليل الكيميائي، ومختبر فحص المعادن، ومختبر الأداء الميكانيكي، ومختبر الأداء الفيزيائي، ومختبر التحليل الطيفي، ومختبر رش الملح، ومختبر التقادم. ويتم استيراد الأجهزة والمعدات الرئيسية من دول مثل الولايات المتحدة الأمريكية، وألمانيا، وإسرائيل.

  تتمتع المجموعة بخبرة تمتد لأكثر من 20 عامًا في مجال بثق الألومنيوم. وبعد سنوات من التدقيق والتراكم، تم تكوين قاعدة بيانات غنية بالبيانات والخبرة، تشمل قواعد بيانات المنتجات، ومعايير التصميم، ومواصفات التحليل (DFMEA وPFMEA) وخطة التحكم، وبيانات التحقق من صحة العمليات، وغيرها.